Skip to content
Facebook
Twitter
Youtube
Instagram
HOME
SHOP
CALENDAR
FAQ
PRIVATE EVENTS
CONTACT
FOOD/VENDORS
ALL THINGS TIP’S
HISTORY
LOCATION
TIP’S TOURS
VIRTUAL TOUR
TIP’S RECORD CLUB
TIP-IT FOUNDATION
TIPITINAS.TV
HOME
SHOP
CALENDAR
FAQ
PRIVATE EVENTS
CONTACT
FOOD/VENDORS
ALL THINGS TIP’S
HISTORY
LOCATION
TIP’S TOURS
VIRTUAL TOUR
TIP’S RECORD CLUB
TIP-IT FOUNDATION
TIPITINAS.TV
1
2
3
4
5
6
7
8
9
10
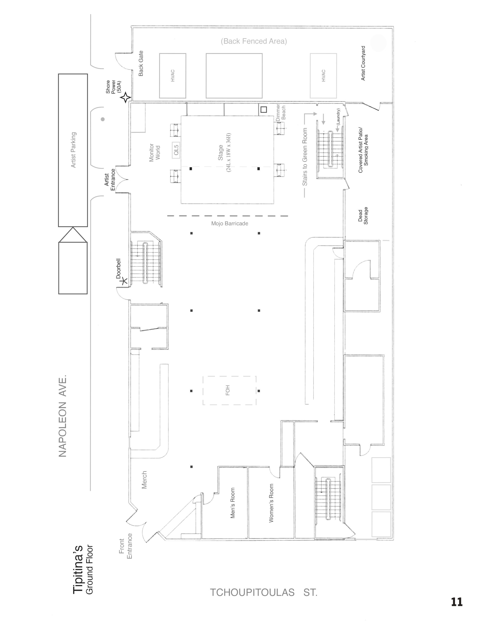
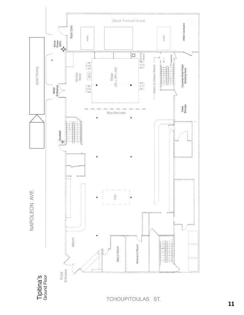
11
12
13
Having trouble viewing? Click Here!